YG-098排污箱概述:
YG-098 YG-153 YG-154排污箱用于贮罐底部,积存介质中的杂质,并进行定其排泄
YG-098排污箱性能规范:
|
公称通径PN |
1.6 |
2.5 |
MPa |
|
壳体试验压力 |
2.4 |
3.75 |
|
|
正常流速 |
≤1.5 |
||
|
关闭流速 |
3 |
M/s |
|
|
适用介质 |
液化气(液相) |
||
|
适用温度 |
-40∽80℃ |
||
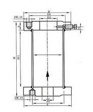
YG-098排污箱外型尺寸和连接尺寸:
|
PN1.6 |
φ |
H |
H1 |
D |
D1 |
D2 |
d |
d1 |
d2 |
b |
b1 |
容积(L) |
|
|
100 |
340 |
260 |
160 |
125 |
57 |
160 |
100 |
38 |
40 |
17 |
2 |
|
|
125 |
380 |
300 |
180 |
145 |
76 |
160 |
125 |
57 |
40 |
19 |
3.6 |
|
|
150 |
340 |
260 |
195 |
160 |
87 |
195 |
125 |
57 |
40 |
19 |
4.6 |
迦百农公司温馨提醒:以上所有资料仅供参考,具体参数请电话咨询!电话热线:021-66093326
永续经营,创造卓越
JBN-YG-098排污箱
YG-098排污箱外形结构图: