YG07-25燃气专用筒型过滤器概述:
YG07-25燃气桶型过滤器是燃气输配系统的重要设备。在燃气输配过程中,为了保证燃气输配设备和仪表如调压器等阀门和流量计、压力表仪表的正常工作和保护其不被损坏,必须去除燃气中的固体杂质,在其前必须安装精度符合要求过滤器。
YG07-25燃气专用筒型过滤器工作原理:
燃气专用桶型过滤器是由阀体和滤网组成,阀体为碳钢或不锈钢,过滤网采用不锈钢双层网结构。介质通过滤网阻挡燃气、煤气、沼气、天然气、石油液化气管路中的锈蚀物和锅炉污垢等杂质,以延长管道系统中各种阀门的工作寿命。当需要清洗时,只要将可拆卸的过滤网从滤桶取出,清洗后重新装入即可。
YG07-25燃气专用筒型过滤器产品特点:
1、标准值煤气,沼气,天然气(LNG),石油液化气(LPG),物腐蚀气体及空气管网上均能安全使用。
2、桶型过滤器比其他过滤器过滤的面积大于2-3倍,保证了燃气通过时,不受压损。
3、燃气调压(柜)站,配气站及门站等输配系统,对保护系统中的调压器,流量计,阀门及其它设备气保护作用。
4、该设备应用可拆法兰上盖,便于取出或更换滤芯。采用不同精度的不锈钢芯可多次清晰使用。
YG07-25燃气专用筒型过滤器主要 零件材料:
|
阀体、盖板: |
碳钢、不锈钢 |
|
过 滤 网: |
不锈钢60-100目/英寸 |
YG07-25燃气专用筒型过滤器性能参数:
|
公称压力 |
壳体试验 |
适用介质 |
适宜温度 |
|
1.6 |
2.4 |
液化气、天然气等 |
-40~+80℃ |
|
2.5 |
3.75 |
||
|
4.0 |
6.0 |
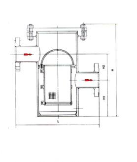
YG07-25燃气专用筒型过滤器主要连接尺寸及外形尺寸:
|
DN-JIS |
L |
H |
H1 |
H2 |
|
|
mm |
in |
||||
|
50 |
2 |
420 |
380 |
180 |
100 |
|
65 |
21/2 |
450 |
400 |
180 |
100 |
|
80 |
3 |
473 |
480 |
200 |
100 |
|
100 |
4 |
573 |
610 |
250 |
180 |
|
125 |
5 |
573 |
610 |
250 |
180 |
|
150 |
6 |
580 |
720 |
280 |
230 |
|
200 |
8 |
650 |
800 |
350 |
360 |
|
250 |
10 |
800 |
950 |
380 |
400 |
迦百农公司温馨提醒:以上所有资料仅供参考,具体参数请电话咨询!电话热线:021-66093326
永续经营,创造卓越
JBN-YG07-25燃气专用筒型过滤器
YG07-25燃气专用筒型过滤器外形结构图: