A21F/N液化气螺纹安全阀概述:
A21F/N液化气螺纹安全阀适用于工作温度≤200℃的空气、氨、石油气……等介质的设备或管路上。A21W-P、R型适用于温度≤200℃有腐蚀性的气体或液体的设备或管路上,作为超压保护装置。KA21Y型适用于温度≤100℃的液化石油气等。
A21F/N液化气螺纹安全阀主要零件材料:
|
NO. |
零件名称 |
A21H-C/A21F材料 |
A21W-P/A21F-P材料 |
A21Y-R材料 |
|
1 |
管接头 |
20 |
1Cr18Ni9Ti |
1Cr18Ni12Mo2Ti |
|
2 |
管接头螺母 |
35 |
2Cr13 |
1Cr18Ni9Ti |
|
3 |
阀座 |
35 |
1Cr18Ni9Ti |
1Cr18Ni12Mo2Ti |
|
4 |
阀体 |
2Cr13 |
1Cr18Ni9Ti |
1Cr18Ni12Mo2Ti |
|
5 |
阀瓣 |
2Cr13/2Cr13+PTFE |
1Cr18Ni9Ti/1Cr18Ni9Ti+PTFE |
1Cr18Ni12Mo2Ti |
|
6 |
弹簧座 |
2Cr13 |
1Cr18Ni9Ti |
1Cr18Ni12Mo2Ti |
|
7 |
弹簧 |
50CrVA |
50CrVA包覆氟塑料 |
50CrVA包覆氟塑料 |
|
8 |
锁紧螺母 |
Q235-A |
ZG230-450 |
1Cr18Ni9Ti |
|
9 |
弹簧导向垫 |
2Cr13 |
1Cr18Ni9Ti |
1Cr18Ni12Mo2Ti |
|
10 |
调节螺母 |
2Cr13 |
1Cr18Ni12Mo2Ti |
|
|
11 |
密封面材料 |
’Y’型堆焊Co基硬质合金,’H’型堆焊D507,’W’型为阀门本体 |
||
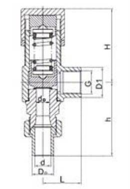
A21F/N液化气螺纹安全阀主要外形尺寸:
|
型号 |
公称通径 |
do |
d |
Do |
M |
d1 |
D1 |
L |
L1 |
≈H |
|
KA21-16C |
15 |
12 |
15 |
20 |
M27×1.5 |
G1/2’ |
30 |
35 |
76 |
66 |
|
A21H-16C |
||||||||||
|
A21H-40 |
||||||||||
|
A21W-16P |
||||||||||
|
A21W-40P |
20 |
16 |
20 |
25 |
M33×1.5 |
G3/4’ |
35 |
40 |
87 |
68 |
|
KA21-16P |
25 |
18 |
25 |
31 |
M39×1.5 |
G1’ |
40 |
50 |
100 |
105 |
|
A21Y-64 |
15 |
10 |
15 |
25 |
M39×1.5 |
G1’ |
44 |
50 |
100 |
66 |
|
A21Y-64P |
||||||||||
|
A21Y-100 |
20 |
10 |
20 |
31 |
M39×1.5 |
G1’ |
44 |
50 |
100 |
68 |
|
A21Y-100P |
25 |
12 |
25 |
31 |
M39×1.5 |
G1’ |
44 |
50 |
100 |
105 |
|
A21W-160/160P |
15 |
8 |
20 |
/ |
M24×2 |
G1’ |
44 |
50 |
100 |
261 |
|
20 |
8 |
25 |
/ |
M33×2 |
G1’ |
44 |
50 |
100 |
261 |
|
|
25 |
8 |
28 |
/ |
M36×2 |
G1’ |
44 |
50 |
100 |
285 |
迦百农公司温馨提醒:以上所有资料仅供参考,具体参数请电话咨询!电话热线:021-66093326
永续经营,创造卓越
JBN-A21F/N液化气螺纹安全阀
A21F/N液化气螺纹安全阀外形结构图: